Building Regulations

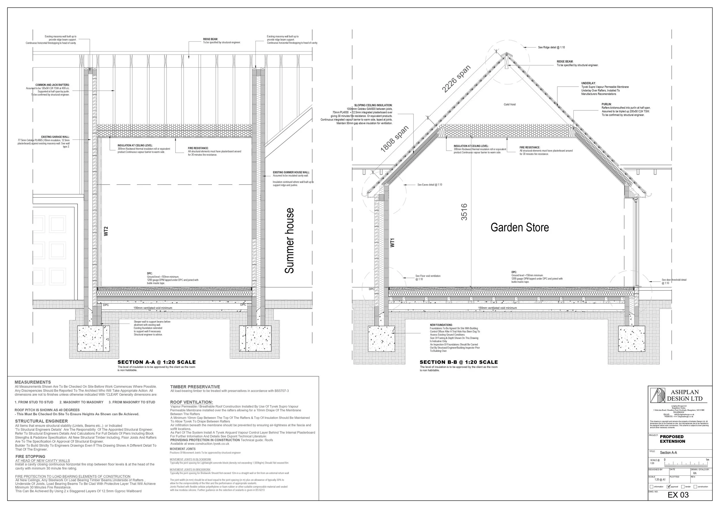
After the Planning stage, a building regulations application is required for a scheme to be approved by building control. These drawings must show compliance with the Approved Documents, as issued by the Government.

Typically these drawings involve detailed floor plans and sections, specifying details such as wall types and thermal requirements.

The structural design is coordinated with a client appointed structural engineer to ensure the plans incorporate any structural changes or modifications.

After they are approved by building control, these plans will typically be used by a contractor to put in a price for a project and to use as a reference on site.